الرياض
الكل · إيجار
1,250,000 ر.س./سنة
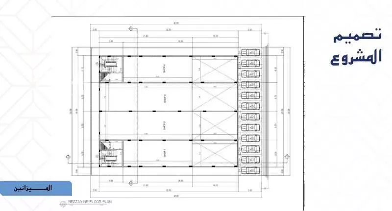
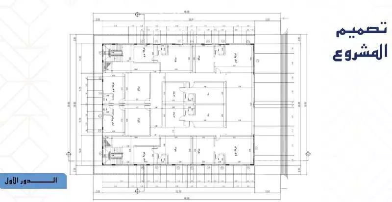
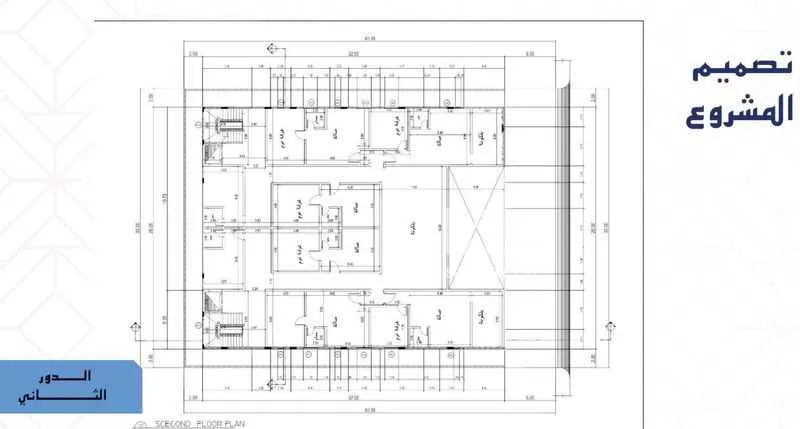
عمارة تجارية وسكنية للإيجار بالكامل أو بالتجزئة الدور الارضي والميزانين مساحة 1200متر الدور الاول شقق مساحة 754 متر الدور الاخير شقق مساحة 539متر خلف المبنى أرض مساحة 900 متر لخدمات المبنى (مواقف ) يت...
عبدالله بن سعيد بن عبدالله الشهراني
رخصة إعلان: 7100248241
الصواري
تصفح المزيد من العقارات المتاحة في الصواري، الخبر.
الثقبة
36 building للإيجار
الخبر الجنوبية
21 building للإيجار
الخبر الشمالية
18 building للإيجار
مدينة العمال
12 building للإيجار
المنار
البادية
الجوهرة
11 building للإيجار
العقربية
10 building للإيجار
الشراع
8 building للإيجار