1,750,000 ر.س.
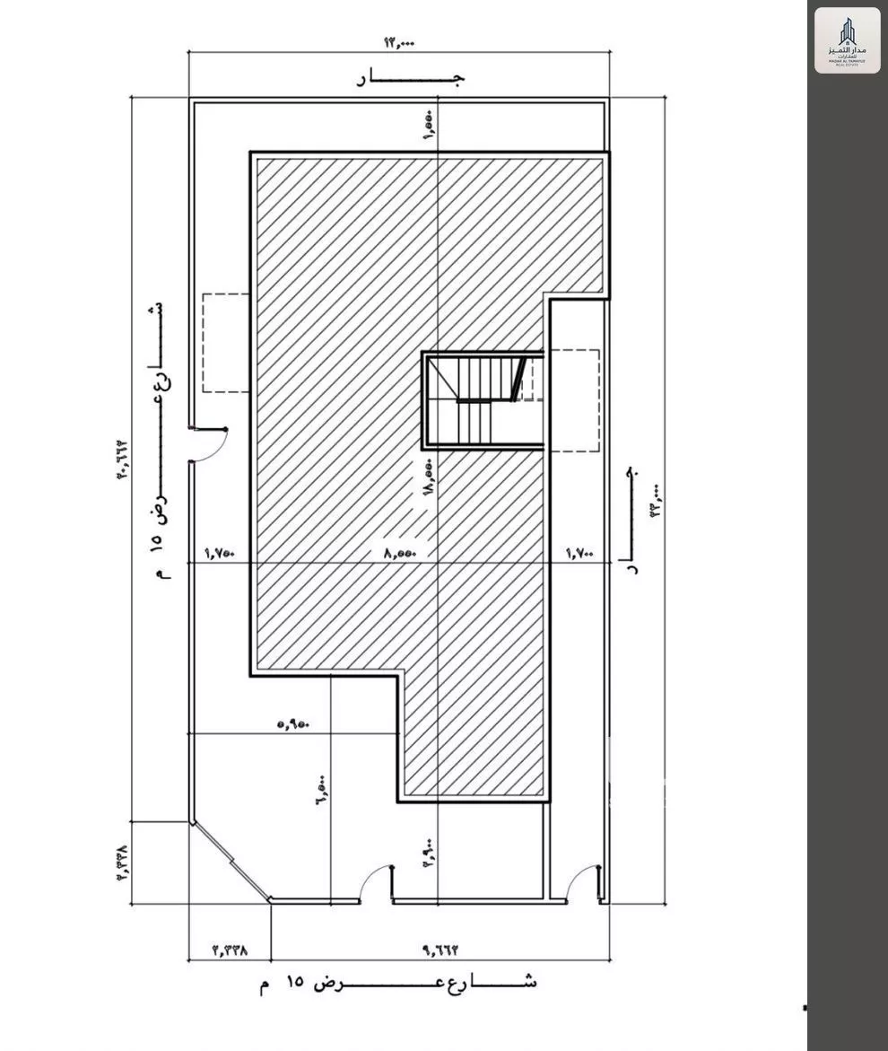
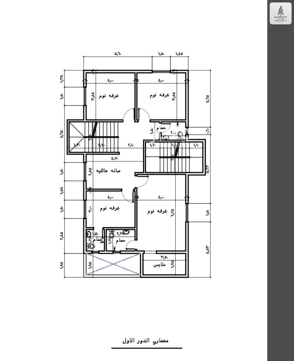
عرض على Aqar-- - *للبيع فلة زاوية مع شقة – تصميم مميز وموقع ممتاز* *المساحة:* 276.84 م² *الموقع:* زاوية على شارعين *المكونات:* فلة + شقة مستقلة *تفاصيل الدور الأرضي (الفلة):* - ملحق خارجي - مجلس رجال - صالة - مجل...
احصل على أفضل العروض في الدريهمية أسبوعياً
سنرسل لك أفضل العقارات كل أسبوع.
الدريهمية
تصفح المزيد من العقارات المتاحة في الدريهمية، الرياض.
عرض جميع العقارات في الدريهمية1,750,000 ر.س.