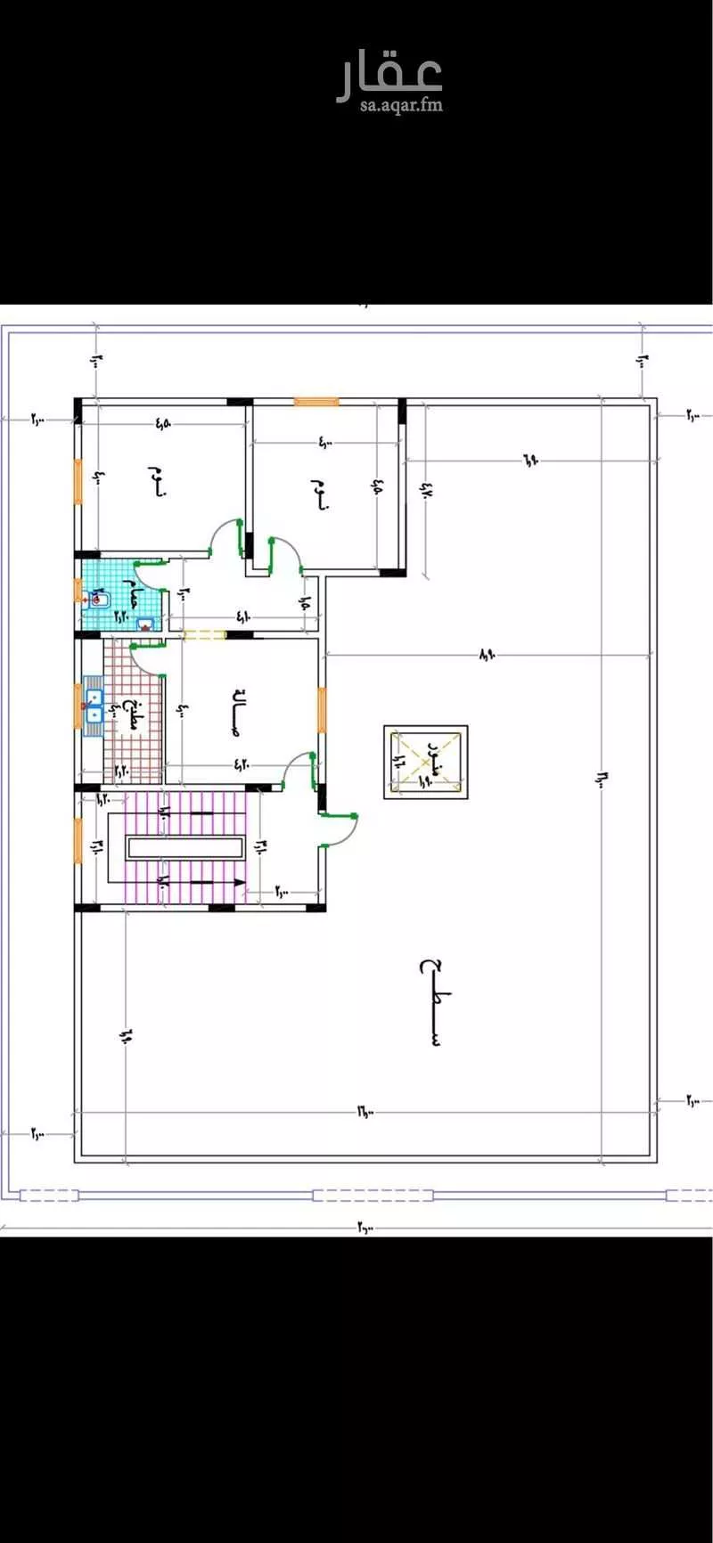
480 sqm in Al Rashidiyyah — 1,850,000 SAR | Darak