الرياض
الكل · إيجار
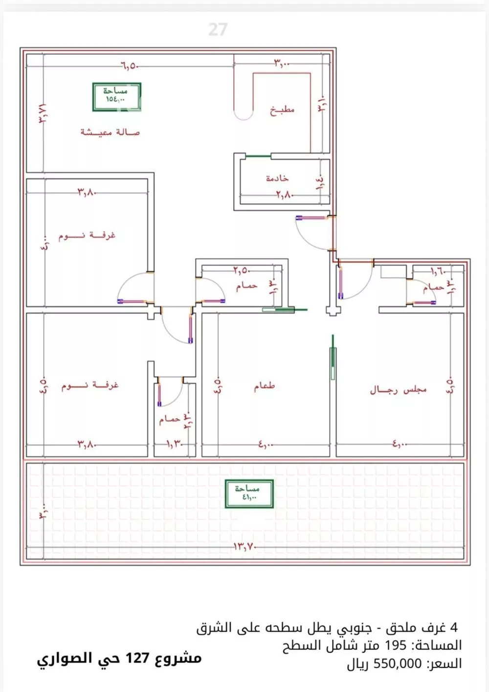
550,000 ر.س.
حي الصواري حيث الهدوء والجمال يلتقيان يتميز المشروع بتوفير بيئة سكنية آمنه ومريحه وصحية بالقرب من جميع الخدمات وكذلك بالقرب من الحديقة ملحق جنوبي يطل سطحه على الشرق : عدد الغرف:4غرف المساحة: 195 ...
محمود فؤاد محمود عارف
مؤسسة محمود فؤاد عارف
رخصة إعلان: 7200735985
الصوارى
تصفح المزيد من العقارات المتاحة في الصوارى، جدة.
النزهة
3712 شقق للبيع
السلامة
2500 شقق للبيع
الروضة
2492 شقق للبيع
الصفا
2402 شقق للبيع
النعيم
1512 شقق للبيع
الفيصلية
1439 شقق للبيع
الفيحاء
1433 شقق للبيع
المروة
1427 شقق للبيع
الربوة
1345 شقق للبيع